Арматура под установку штангового насоса АУ 140х50
УК ООО «ТМС групп» производит и поставляет арматуру под установку штангового насоса АУ 140х50.
Подробности
Арматура под установку штангового насоса АУ 140х50
Назначение
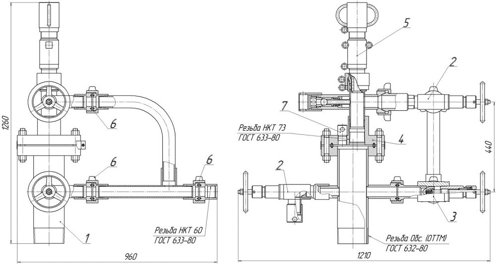
Арматура предназначена для установки на устья скважин, оборудованных штанговым насосом. Арматура позволяет проводить технологические операций, ремонтные и исследовательские работы.
Арматура укомплектована устьевым сальником со сферическим шарнирным соединением, которое позволяет компенсировать угловые перекосы от несовпадения осей устья скважины и станка - качалки.
Арматура укомплектована угловым вентилем – обратным клапаном, который позволяет сбрасывать избыточное давление газов из затрубного пространства в канал с добываемой средой.
По согласованию с заказчиком допускается изменение комплектации арматуры.
Характеристики
Документы
Фотогалерея
1/1
—
Главный специалист направления
Главный специалист коммерческой службы центра обеспечения контрактами управления по развитию продукции машиностроения
Горбачева Лилия Радмиловна
Телефон
E-mail
С этим товаром покупают
